인테리어

PORTFOLIO

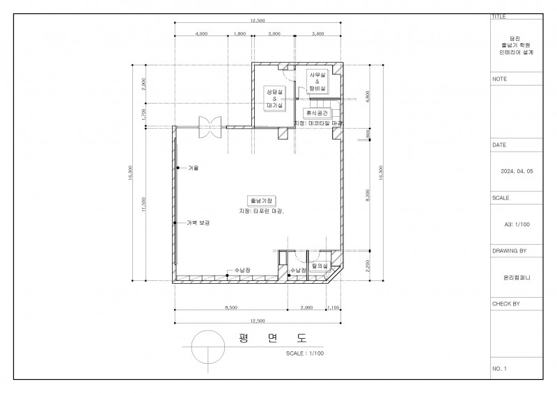
당진 줄넘기 학원 3d 및 도면

84841028563b7a2b2a5197a4701d8fc0_1713763839_8149.jpg
84841028563b7a2b2a5197a4701d8fc0_1713763839_8865.jpg
84841028563b7a2b2a5197a4701d8fc0_1713763839_9497.jpg
84841028563b7a2b2a5197a4701d8fc0_1713763875_0596.jpg
 

상담문의 : 02.6951.2115
카카오톡채널: 온리컴퍼니